Eladó lakás Százhalombatta 59 900 000 Ft

Leírás

Eladó Százhalombattán világos, azonnal költözhető erkélyes otthon az Erkel Ferenc körúton!
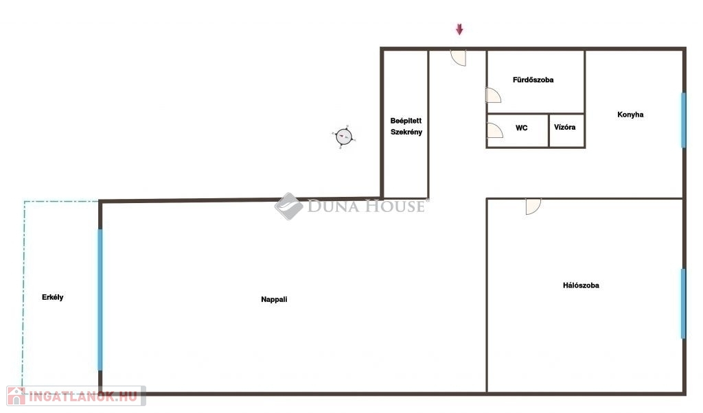
Százhalombatta közkedvelt részén, az Erkel Ferenc körúton keresi új gazdáját ez az 53 m²-es, 4. emeleti, két különnyíló szobás lakás.
Ha olyan otthont keres, ahol nem a felújítással kell kezdenie a beköltözést, ez a lakás remek választás lesz.
Az ingatlan az elmúlt 12 hónapban jelentős esztétikai frissítésen esett át, így modern és tiszta belső tér fogadja: Friss festés és új parketta. Minden helyiség tiszta és világos, a padlóburkolatok vadonatújak.
Megújult vizesblokkok: A fürdőszoba és a WC frissen csempézett, ízléses és higiénikus.
A nyílászárók műanyagok, a nyári melegben pedig klíma gondoskodik a kellemes hőmérsékletről.
Világos és csendes: A lakás elosztása kiváló, a rendezett lépcsőház pedig garancia a nyugalomra.
Praktikus tárolás: Nem kell a lakásban kerülgetni a bőröndöket vagy a biciklit, hiszen saját, zárható tároló tartozik hozzá.
Kiemelt parkolási lehetőség: Igazi ritkaság a környéken, hogy közvetlenül a lépcsőház bejárata mellett egy dupla garázs is bérelhető (opcionálisan 55.000 Ft/hó áron), így az autója is biztonságban pihenhet.
Minden egy karnyújtásra: A közlekedés miatt nem kell aggódnia: a buszmegálló 2 perc sétára van, a vasútállomás pedig gyalog is kényelmesen elérhető 10 perc alatt. Boltok, szolgáltatások és parkok veszik körül az épületet.
Amennyiben az ingatlan felkeltette érdeklődését, kérem keressen bizalommal!

Lakás részletei

Ár: 59 900 000 Ft
Méret: 50 négyzetméter
Azonosító: 11614446
Irodai azonosító: LK097134-5207394
Cím: Eladó 50 nm-es lakás Százhalombatta
Emelet: 4. emelet
Építőanyag: Panel
Fűtés jellege: Házközponti
Ingatlan állapota: Kitűnő
Építési év: 21-50 éves
Egész szobák: 2

Egyéb jellemzők

  • Erkély

Térkép